Ufficio in affitto

Arzago D'Adda, Via Strada Rivoltana
€ 6.800 / mese
1 locale 1 locale
660 Mq 660 Mq
3 bagni 3 bagni

Ufficio in affitto

Arzago D'Adda, Via Strada Rivoltana

Descrizione annuncio

COSA SAPERE DELL'IMMOBILE

PER INFORMAZIONI ED APPUNTAMENTI CHIAMA 0363 700 628

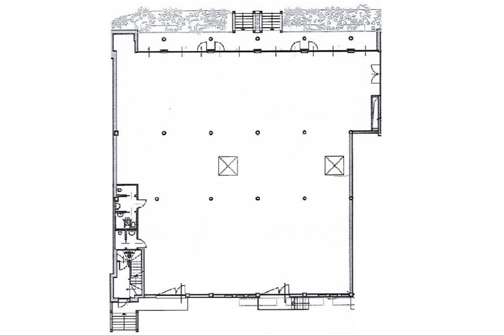
Proponiamo in locazione un ufficio con superficie di 660 metri quadrati situato al piano terra di una struttura commerciale/direzionale.

DESCRIZIONE E PARTICOLARITA'

L'ufficio misura 660 metri quadrati ed è situato al piano terra di una palazzina commerciale/direzionale. La soluzione è un open space ed è dotata di tre servizi igienici, di cui uno a norma disabili. L'ambiente è particolarmente luminoso grazie alla presenza di sei ampie vetrine. Il locale, controsoffittato, è servito dall'impianto di riscaldamento e condizionamento, da quello elettrico e di illuminazione. Inoltre, è presente l'impianto antincendio a idranti con annessi rilevatori, il sistema di ventilazione meccanica e quello di aspirazione fumi. Inoltre, è cablato e presenta doppio ingresso.

A garanzia degli esatti adempimenti contrattuali, è richiesta la fidejussione bancaria pari a sei mensilità di canone, oltre che al deposito cauzionale pari a tre mensilità.

UBICAZIONE E CONTESTO

Il complesso è ubicato nel Comune di Arzago d'Adda e si affaccia sulla Strada Provinciale SP185, la quale collega il paese ai Comuni limitrofi. Il fabbricato gode di alcuni parcheggi pubblici situati di fronte alla soluzione.

Mostra tutto

Nelle vicinanze

Ricariche auto elettriche Ricariche auto elettriche
Centro Ricreativo Sportivo Casirate | EnelX
1,7 Km
Casirate Industria | Ressolar
1,8 Km
Scuole Scuole
Scuole
1,9 Km
Farmacia Farmacia
Farmacia
550 m
Negozi Negozi
Negozi
1,8 Km
Bar Bar
Bar
1,6 Km
Pasticceria Gelateria Bar Alpino
2,1 Km
Ristoranti Ristoranti
Ristorante Giropizza DOC
130 m
Ristoranti
1,8 Km
Agriturismo Le Monache
2,2 Km
Cascina Bosco Grosso
2,4 Km
Mostra tutto

Caratteristiche

Rif.:
60994986
Piano:
Terra di 2
Totale piani:
2
Posti auto:
30
Condizionamento:
Centralizzato
Ascensore:
No
Mostra tutto
Prezzo Prezzo
€ 6.800 / mese
Spese annue Spese annue
€ 0

Classe Energetica

Questo immobile è esente da classe energetica
Anno di costruzione:
2005
Riscaldamento:
Centralizzato
Tipo impianto:
Ad aria
Tipo alimentazione:
Aria

Ti interessa visionare l'immobile?

Fissa un appuntamento  Fissa un appuntamento

Richiedi informazioni

Clicca su Leggi per aprire l'informativa
* Questi campi sono obbligatori
Affiliato
Industriale Treviglio Srl
Via Cesare Battisti, 47 24047 Treviglio (BG)

Il nostro staff


  • Alice Blini
    Coordinatrice

  • Elena Chiti
    Coordinatrice

  • Debora Defendi
    Coordinatrice

  • Zaccaria Hakim
    Collaboratore

  • Ermanno Leoni
    Affiliato

  • Riccardo Maestri
    Collaboratore
Via Cesare Battisti, 47 24047 Treviglio (BG)
Zona: Treviglio-Pontirolo Nuovo-Rivolta D'Adda-Pandino-Trescore Cremasco-Spino D'Adda
Mostra su mappa
Affiliato
Industriale Treviglio Srl
Via Cesare Battisti, 47 24047 Treviglio (BG)

2025 Tecnocasa Franchising S.p.A. - P. IVA 08365160152 - Via Monte Bianco 60/A 20089 Rozzano (MI). Ogni agenzia ha un proprio titolare ed è autonoma. Privacy policy | Policy utilizzo | Cookie policy