Capannone in vendita

Caravaggio, Via Treviglio
€ 1.400.000
5 locali 5 locali
2155 Mq 2155 Mq
11 bagni 11 bagni

Capannone in vendita

Caravaggio, Via Treviglio

Questo immobile dispone di soluzioni frazionate

Descrizione annuncio

COSA SAPERE DELL'IMMOBILE

PER INFORMAZIONI ED APPUNTAMENTI CHIAMA 0363 700 628

Il capannone proposto in vendita ha una superficie complessiva di circa 2.155 metri quadrati, di cui 1.000 metri quadrati parte produttiva posto al piano terra, 510 metri quadrati di capannone commerciale posto al piano primo, 370 metri quadrati di magazzini seminterrati. Infine sono presenti due appartamenti, per un totale di 235 metri quadrati. Inoltre, possiede ulteriori 1.500 metri quadrati di area esterna esclusiva.

Le fotografie del presente annuncio sono state generate con l'intelligenza artificiale.

DESCRIZIONE E PARTICOLARITA'

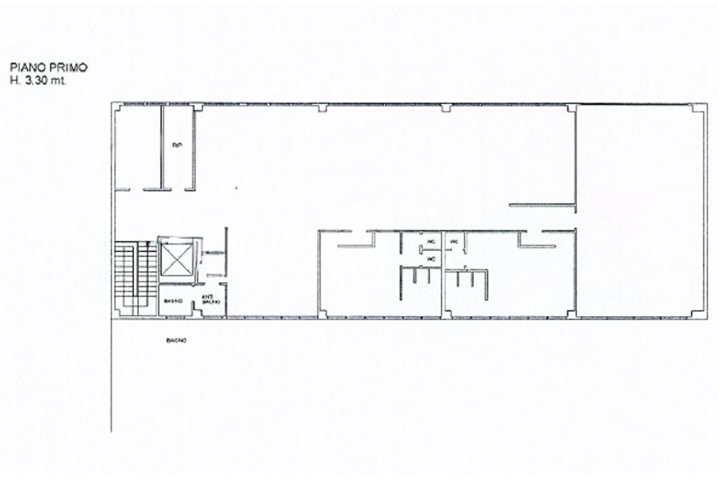
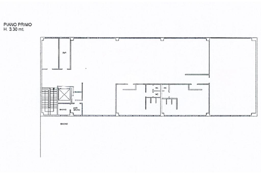
Il capannone commerciale misura 510 metri quadrati, è completamente controsoffittato, ed è situato al piano primo raggiungibile sia tramite scala che tramite ascensore, è completo di un ufficio e di quattro servizi igienici con spogliatoio e docce. Inoltre la parte commerciale è completa di tutti gli impianti. La parte produttiva è di circa 1.000 metri quadrati, situato al piano terra, sono presenti due uffici e due servici igienici. La parte residenziale è complessiva di 235 metri quadrati così suddiviso, un appartamento di circa 90 metri quadrati posto al piano rialzato, mentre l’altro appartamento è di circa 145 metri quadrati ed è situato al piano primo. La struttura include anche ulteriori 370 metri quadrati di magazzino al piano seminterrato. La proprietà è interamente recintata e possiede 1.500 metri quadrati di area esterna esclusiva e un’autorimessa di circa 40 metri quadrati.

UBICAZIONE E CONTESTO

Il complesso è ubicato nel Comune di Caravaggio, affaccia dalla Strada Provinciale SP11, la quale collega il paese ai Comuni limitrofi. In aggiunta, dista meno di due chilometri dal casello autostradale A35 di Caravaggio.

Mostra tutto

Nelle vicinanze

Trasporto pubblico Trasporto pubblico
stazione di Caravaggio
stazione di Caravaggio
1,5 Km
Caravaggio - Via Treviglio
Caravaggio - Via Treviglio
210 m
Caravaggio - Via San Francesco
Caravaggio - Via San Francesco
850 m
Vidalengo
Vidalengo
1,9 Km
Ricariche auto elettriche Ricariche auto elettriche
LIDL Caravaggio
250 m
Caravaggio Mazzini Fast | Ressolar
1,1 Km
ENERCOOP Treviglio
2,5 Km
Calvenzano XXV Aprile | Ressolar
2,6 Km
Treviglio Parcheggio della piscina | EnelX
2,8 Km
Scuole Scuole
Istituto Comprensivo "Mastri Caravaggini"
880 m
Liceo Statale Galileo Galilei
980 m
Conventino - La Sorgente
1,0 Km
Istituto Superiore "Archimede"
1,1 Km
La margheritina
1,1 Km
Farmacia Farmacia
Farmacia Comunale 1
1,5 Km
Farmacia Antonioli
1,5 Km
Farmacia Ambiveri
1,5 Km
Farmacia San Giovanni
2,4 Km
Farmacia Comunale 3
2,7 Km
Ospedali Ospedali
Azienda Ospedaliera Treviglio Caravaggio
1,4 Km
Supermercati Supermercati
Lidl
210 m
Carrefour Market
230 m
MD
380 m
Supermercato Buongiorno
1,6 Km
EuroSpin
2,3 Km
Negozi Negozi
OVS
430 m
Il chicco di grano
1,3 Km
Panificio Damoni
1,4 Km
La coccinella
1,4 Km
Panificio Avelli
1,4 Km
Bar Bar
AGIP Bar
60 m
Bar del Centro Sportivo
880 m
Pink Ciok Cafè
900 m
College Café
1,1 Km
Fantasy Bar
1,1 Km
Ristoranti Ristoranti
Break
600 m
Eurasia
710 m
Autogrill
1,1 Km
Quo Vadis
1,2 Km
DD Dario De Santis
1,5 Km
Mostra tutto

Caratteristiche

Rif.:
61122417
Piano:
Su più livelli di 3 con ascensore
Totale piani:
3
Posti auto:
99
Condizionamento:
Autonomo
Ascensore:
Mostra tutto
Prezzo Prezzo
€ 1.400.000
Rata mutuo Rata mutuo
€ 6.608 / mese
Spese annue Spese annue
€ 0
Proponi il tuo prezzoProponi il tuo prezzo

Classe Energetica

Questo immobile è esente da classe energetica
Anno di costruzione:
1990
Riscaldamento:
Autonomo
Tipo impianto:
A radiatori
Tipo alimentazione:
Metano

Ti interessa visionare l'immobile?

Fissa un appuntamento  Fissa un appuntamento

Richiedi informazioni

Clicca su Leggi per aprire l'informativa
* Questi campi sono obbligatori

Calcola il tuo mutuo

Semplice e senza impegno
Anticipo

( % )
Mutuo

( % )

pochi semplici passi

inserisci i tuoi dati
Questionario completato
Grazie per aver richiesto un appuntamento senza impegno con un nostro Consulente del Credito e Assicurativo.

Hai inserito correttamente tutti i dati necessari e a breve riceverai una e-mail con un link da convalidare per inviare i tuoi dati.
Affiliato
Industriale Treviglio Srl
Via Cesare Battisti, 47 24047 Treviglio (BG)

Il nostro staff


  • Alice Blini
    Coordinatrice

  • Elena Chiti
    Coordinatrice

  • Debora Defendi
    Coordinatrice

  • Zaccaria Hakim
    Collaboratore

  • Ermanno Leoni
    Affiliato

  • Riccardo Maestri
    Collaboratore
Via Cesare Battisti, 47 24047 Treviglio (BG)
Zona: Treviglio-Pontirolo Nuovo-Rivolta D'Adda-Pandino-Trescore Cremasco-Spino D'Adda
Mostra su mappa
Affiliato
Industriale Treviglio Srl
Via Cesare Battisti, 47 24047 Treviglio (BG)

2025 Tecnocasa Franchising S.p.A. - P. IVA 08365160152 - Via Monte Bianco 60/A 20089 Rozzano (MI). Ogni agenzia ha un proprio titolare ed è autonoma. Privacy policy | Policy utilizzo | Cookie policy