Ufficio in vendita

Castel Rozzone, Via San Carlo
€ 44.000
2 locali 2 locali
40 Mq 40 Mq
1 bagno 1 bagno

Ufficio in vendita

Castel Rozzone, Via San Carlo

Descrizione annuncio

COSA SAPERE DELL'IMMOBILE

PER INFORMAZIONI ED APPUNTAMENTI CHIAMA 0363 700 628

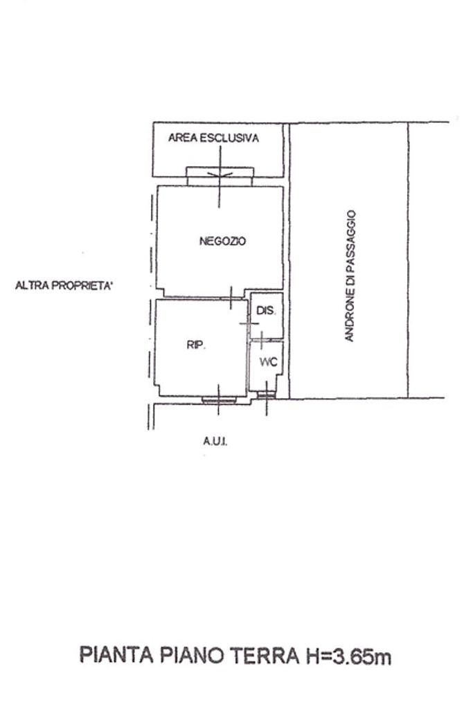
Proponiamo in vendita ufficio con superficie di ca 40 metri quadrati, situato al piano terra di una struttura che si sviluppa su due livelli.

DESCRIZIONE E PARTICOLARITA'

L'ufficio misura 40 metri quadrati ed è situato al piano terra di una palazzina. La soluzione è attualmente divisa in due locali ed è dotata di un servizio igienico. L'ambiente è luminoso grazie alla presenza di una grande vetrina e una finestra. La struttura è munita dell’impianto elettrico e dell’impianto di illuminazione. L’immobile è inoltre cablato e gode di un parcheggio esclusivo.

UBICAZIONE E CONTESTO

Il complesso è ubicato nel Comune di Castel Rozzone e si trova nei pressi della Strada Provinciale SP126, la quale collega il paese ai Comuni limitrofi.

Mostra tutto

Nelle vicinanze

Trasporto pubblico Trasporto pubblico
Arcene
Arcene
2,7 Km
Castel Rozzone - Corso Europa
Castel Rozzone - Corso Europa
710 m
Lurano - Municipio
Lurano - Municipio
1,7 Km
Ricariche auto elettriche Ricariche auto elettriche
Campo Sportivo di Castel Rozzone | Ressolar
160 m
Lurano San Lino | Ressolar
1,8 Km
Scuole Scuole
Scuola Primaria di Castel Rozzone
280 m
Scuole
300 m
Scuola Secondaria di Castel Rozzone
430 m
Scuola elementare di Lurano
1,8 Km
Scuola media di Lurano
1,9 Km
Farmacia Farmacia
Farmacia Petrosillo
1,8 Km
Farmacia San Bonifacio
2,3 Km
Farmacia
2,3 Km
Supermercati Supermercati
EuroSpin
3,0 Km
NaturaSì
3,0 Km
Negozi Negozi
Unigross
3,0 Km
Bar Bar
Non solo fumo
1,8 Km
Aguadecoco
2,0 Km
La Vetrata
2,1 Km
Crema e cioccolato
2,2 Km
The Sisters
2,3 Km
Ristoranti Ristoranti
Agriturismo Capetone
690 m
Cascina San Marco
1,1 Km
Il Pirata
1,6 Km
Agriturismo Cascina Biffa
1,8 Km
La barca a vela
1,8 Km
Mostra tutto

Caratteristiche

Rif.:
61171056
Piano:
Terra di 2
Totale piani:
2
Posti auto:
1
Condizionamento:
Assente
Ascensore:
No
Mostra tutto
Prezzo Prezzo
€ 44.000
Rata mutuo Rata mutuo
€ 209 / mese
Spese annue Spese annue
€ 0
Proponi il tuo prezzoProponi il tuo prezzo

Classe Energetica

Questo immobile è esente da classe energetica
Anno di costruzione:
1978
Riscaldamento:
Assente

Ti interessa visionare l'immobile?

Fissa un appuntamento  Fissa un appuntamento

Richiedi informazioni

Clicca su Leggi per aprire l'informativa
* Questi campi sono obbligatori

Calcola il tuo mutuo

Semplice e senza impegno
Anticipo

( % )
Mutuo

( % )

pochi semplici passi

inserisci i tuoi dati
Questionario completato
Grazie per aver richiesto un appuntamento senza impegno con un nostro Consulente del Credito e Assicurativo.

Hai inserito correttamente tutti i dati necessari e a breve riceverai una e-mail con un link da convalidare per inviare i tuoi dati.
Affiliato
Industriale Treviglio Srl
Via Cesare Battisti, 47 24047 Treviglio (BG)

Il nostro staff


  • Leonardo Baffi
    Collaboratore

  • Alice Blini
    Coordinatrice

  • Pietro Calabrese
    Collaboratore

  • Debora Defendi
    Responsabile

  • Ermanno Leoni
    Affiliato
Via Cesare Battisti, 47 24047 Treviglio (BG)
Zona: Treviglio-Pontirolo Nuovo-Rivolta D'Adda-Pandino-Trescore Cremasco-Spino D'Adda
Mostra su mappa
Affiliato
Industriale Treviglio Srl
Via Cesare Battisti, 47 24047 Treviglio (BG)

2026 Tecnocasa Franchising S.p.A. - P. IVA 08365160152 - Via Monte Bianco 60/A 20089 Rozzano (MI). Ogni agenzia ha un proprio titolare ed è autonoma. Privacy policy | Policy utilizzo | Cookie policy