Capannone in affitto

Monte Cremasco, Via Giuseppe Garibaldi
4 locali 4 locali
1510 Mq 1510 Mq
4 bagni 4 bagni

Capannone in affitto

Monte Cremasco, Via Giuseppe Garibaldi

Descrizione annuncio

COSA SAPERE DELL'IMMOBILE

PER INFORMAZIONI ED APPUNTAMENTI CHIAMA 0363 700 628

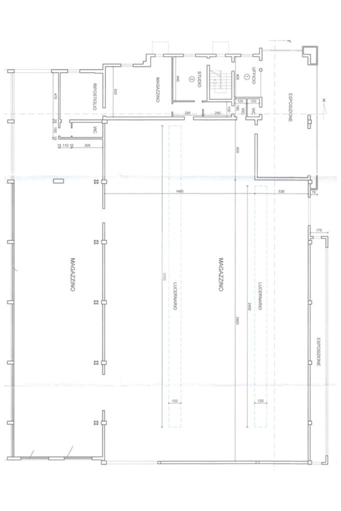
Il capannone proposto in locazione ha una superficie complessiva di circa 1.510 metri quadrati di cui 20 metri quadrati adibiti ad uffici e 40 metri quadrati di negozio. Inoltre sono presente 200 metri quadrati di appartamenti situati al piano primo e ulteriori 2.000 metri quadrati di area esterna esclusiva.

DESCRIZIONE E PARTICOLARITA'

Il capannone misura 1.250 metri quadrati, si sviluppa in due campate. La prima di circa 750 metri quadrati ed ha un’altezza di circa 6,00 metri, mentre la seconda campata di circa 500 metri quadrati ed ha un’altezza pari a 4,00 metri. La struttura è accessibile tramite due portoni alti 3,50 metri. Il fabbricato è dotato del sistema di videosorveglianza ed è predisposto all’istallazione degli impianti che saranno a cura dell’acquirente. La soluzione possiede 40 metri quadrati circa di showroom dove è possibile effettuare la vendita diretta. L’immobile è servito di quattro servizi igienici, è completa di circa 20 metri quadrati di uffici. La struttura al piano primo presenta due appartamenti, ognuno di circa 100 metri quadrati, con la possibilità di essere trasformati in spogliatoi o eventualmente scorporati dalla locazione principale a seconda delle esigenze. Inoltre, sono presenti ulteriori 2.000 metri quadrati di area esterna esclusiva.

UBICAZIONE E CONTESTO

Il complesso è ubicato nel Comune di Monte Cremasco, e affaccia sulla Strada Provinciale ex Strada Statale Paullese SP415, la quale collega il paese ai Comuni limitrofi.

Mostra tutto

Nelle vicinanze

Trasporto pubblico Trasporto pubblico
Trasporto pubblico
2,5 Km
Ricariche auto elettriche Ricariche auto elettriche
Dovera Gargioni | BECHARGE
2,8 Km
Scuole Scuole
Scuola elementare Ottaviano Marazzi
2,0 Km
Scuola Giovanni Pascoli
2,1 Km
Scuole
2,4 Km
Scuola elementare Maria Moretti
3,0 Km
Scuola Elementare e Media Statale G. Marconi
3,0 Km
Farmacia Farmacia
Farmacia
750 m
Farmacia
2,9 Km
Supermercati Supermercati
Supermercati
2,5 Km
Negozi Negozi
La Piazzetta
2,8 Km
Rosi & Ari
2,9 Km
La Bottega del Gusto
3,0 Km
Bar Bar
Bar Centrale
930 m
Café Fontaine
2,9 Km
Ristoranti Ristoranti
L'Esodo
190 m
Pizza al Trancio
770 m
Leon Rampante
830 m
Pizzeria Kebab Postino
2,5 Km
7 Sapori
2,8 Km
Mostra tutto

Caratteristiche

Rif.:
61191904
Piano:
Su più livelli di 2
Totale piani:
2
Condizionamento:
Assente
Ascensore:
No
Riscaldamento:
Assente
Mostra tutto
Prezzo Prezzo
€ 4.000 / mese
Spese annue Spese annue
€ 0
Anche in vendita a

Classe Energetica

Questo immobile è esente da classe energetica
Anno di costruzione:
1980
Riscaldamento:
Assente

Ti interessa visionare l'immobile?

Fissa un appuntamento  Fissa un appuntamento

Richiedi informazioni

Clicca su Leggi per aprire l'informativa
* Questi campi sono obbligatori
Affiliato
Industriale Treviglio Srl
Via Cesare Battisti, 47 24047 Treviglio (BG)

Il nostro staff


  • Leonardo Baffi
    Collaboratore

  • Alice Blini
    Coordinatrice

  • Pietro Calabrese
    Collaboratore

  • Debora Defendi
    Responsabile

  • Ermanno Leoni
    Affiliato
Via Cesare Battisti, 47 24047 Treviglio (BG)
Zona: Treviglio-Pontirolo Nuovo-Rivolta D'Adda-Pandino-Trescore Cremasco-Spino D'Adda
Mostra su mappa
Affiliato
Industriale Treviglio Srl
Via Cesare Battisti, 47 24047 Treviglio (BG)

2026 Tecnocasa Franchising S.p.A. - P. IVA 08365160152 - Via Monte Bianco 60/A 20089 Rozzano (MI). Ogni agenzia ha un proprio titolare ed è autonoma. Privacy policy | Policy utilizzo | Cookie policy