Capannone in affitto

Pontirolo Nuovo, Via Radaelli
€ 1.600 / mese
1 locale 1 locale
400 Mq 400 Mq
1 bagno 1 bagno

Capannone in affitto

Pontirolo Nuovo, Via Radaelli

Questo immobile appartiene ad un'unità principale con metratura più ampia

Descrizione annuncio

COSA SAPERE DELL'IMMOBILE

PER INFORMAZIONI ED APPUNTAMENTI CHIAMA 0363 700 628

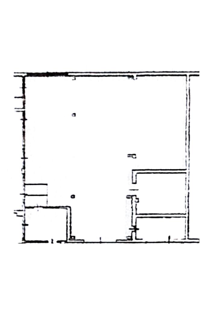
Il capannone proposto in locazione ha una superficie complessiva di circa 400 metri quadrati, di cui 20 metri quadrati adibiti ad ufficio ed ulteriori 200 metri quadrati di area esterna ad uso esclusivo.

DESCRIZIONE E PARTICOLARITA'

Il capannone misura 400 metri quadrati, ha un’altezza pari a 6,50 metri e si sviluppa su un'unica campata, è accessibile tramite un portone. La struttura è dotata di 20 metri quadrati di uffici. L’immobile è servito dall’impianto elettrico e quello di illuminazione. La soluzione è munita anche di un servizio igienico, con spogliatoio. Inoltre, la proprietà è interamente recintata e possiede ulteriori 200 metri quadrati di area esterna ad uso esclusivo.

UBICAZIONE E CONTESTO

Il complesso è ubicato nel Comune di Pontirolo Nuovo, poco distante dalla Strada Provinciale SP142, la quale collega il paese ai Comuni limitrofi.

Mostra tutto

Nelle vicinanze

Trasporto pubblico Trasporto pubblico
Arcene
Arcene
2,8 Km
Trasporto pubblico
1,8 Km
Ricariche auto elettriche Ricariche auto elettriche
Evbility Comune di Canonica d'Adda
2,3 Km
Scuole Scuole
Scuole
2,3 Km
Scuola Secondaria Sandro Pertini
2,6 Km
Farmacia Farmacia
Farmacia Peschiulli
2,2 Km
Farmacia
2,8 Km
Supermercati Supermercati
Conad
2,2 Km
La Coccinella
2,5 Km
Mercato di Vaprio d'Adda
2,9 Km
Negozi Negozi
Mini Market
2,6 Km
Negozi
2,9 Km
Bar Bar
Chiosco
530 m
Bar
2,6 Km
Bar Mauro
2,8 Km
Ristoranti Ristoranti
Agriturismo tre torri
680 m
Pizzeria San Michele
1,2 Km
Ristorante al Cantinone
2,4 Km
Sant'Orsola Pizzeria Trattoria
2,6 Km
Trattoria Degli Amici
2,7 Km
Mostra tutto

Caratteristiche

Rif.:
61134867
Piano:
Terra di 2
Totale piani:
2
Condizionamento:
Assente
Ascensore:
No
Riscaldamento:
Assente
Mostra tutto
Prezzo Prezzo
€ 1.600 / mese
Spese annue Spese annue
€ 0

Altre caratteristiche

Descrizione dei locali
Bagno antibagno

Classe Energetica

Questo immobile è esente da classe energetica
Anno di costruzione:
1990
Riscaldamento:
Assente

Ti interessa visionare l'immobile?

Fissa un appuntamento  Fissa un appuntamento

Richiedi informazioni

Clicca su Leggi per aprire l'informativa
* Questi campi sono obbligatori
Affiliato
Industriale Treviglio Srl
Via Cesare Battisti, 47 24047 Treviglio (BG)

Il nostro staff


  • Alice Blini
    Coordinatrice

  • Elena Chiti
    Coordinatrice

  • Debora Defendi
    Coordinatrice

  • Zaccaria Hakim
    Collaboratore

  • Ermanno Leoni
    Affiliato

  • Riccardo Maestri
    Collaboratore
Via Cesare Battisti, 47 24047 Treviglio (BG)
Zona: Treviglio-Pontirolo Nuovo-Rivolta D'Adda-Pandino-Trescore Cremasco-Spino D'Adda
Mostra su mappa
Affiliato
Industriale Treviglio Srl
Via Cesare Battisti, 47 24047 Treviglio (BG)

2025 Tecnocasa Franchising S.p.A. - P. IVA 08365160152 - Via Monte Bianco 60/A 20089 Rozzano (MI). Ogni agenzia ha un proprio titolare ed è autonoma. Privacy policy | Policy utilizzo | Cookie policy