Negozio in affitto

Rivolta D'Adda, Via Dante Alighieri
€ 750 / mese
Prezzo aggiornato
2 locali 2 locali
50 Mq 50 Mq
1 bagno 1 bagno

Negozio in affitto

Rivolta D'Adda, Via Dante Alighieri

Descrizione annuncio

COSA SAPERE DELL'IMMOBILE

PER INFORMAZIONI ED APPUNTAMENTI CHIAMA 0363 700 628

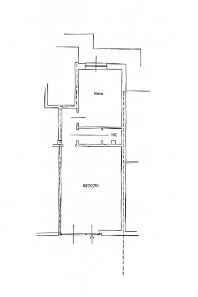
Proponiamo in locazione un negozio con superficie di 50 metri quadrati, situato al piano terra di una struttura condominiale.

DESCRIZIONE E PARTICOLARITA'

Il negozio misura 50 metri quadrati ed è situato al piano terra di una palazzina che si sviluppa su due livelli. La soluzione è divisa in due locali ed è dotata di un servizio igienico privato a norma disabili con antibagno. L'ambiente è particolarmente luminoso grazie alla presenza di una grande vetrina. Il locale possiede l’impianto di riscaldamento e condizionamento ad aria, l’impianto elettrico e quello di illuminazione. L’immobile, controsoffittato, è cablato, presenta il sistema antincendio a idranti e ulteriori 15 metri quadri di area esterna esclusiva.

UBICAZIONE E CONTESTO

Il complesso è ubicato nel Comune di Rivolta d’Adda, e si affaccia sulla Strada Provinciale SP1, la quale collega il paese ai Comuni limitrofi. Il fabbricato gode di alcuni parcheggi pubblici situati nelle vicinanze della soluzione.

Mostra tutto

Nelle vicinanze

Trasporto pubblico Trasporto pubblico
Via GIulio Cesare - edicola
Via GIulio Cesare - edicola
350 m
Via Matteotti - posta
Via Matteotti - posta
480 m
Ricariche auto elettriche Ricariche auto elettriche
Evbility Rivolta d'adda
370 m
U2 Supermercato Rivolta d'Adda | EnelX
700 m
Scuole Scuole
Scuola Elementare E. Calvi
420 m
Scuola Media D. Birago
510 m
Ospedali Ospedali
Ospedale "Santa Marta"
270 m
Supermercati Supermercati
Carrefour
550 m
MD Market
630 m
U2
710 m
Negozi Negozi
Casa del Pane
230 m
Panificio Pasticceria Maristella
290 m
Bar Bar
Bar Centrale
250 m
Bar
1,5 Km
Ristoranti Ristoranti
Ristorante Italia
830 m
L'antico sapore
1,0 Km
Agriturismo Alla Ribella
1,5 Km
Agriturismo La Cascina Rossa
1,9 Km
Agriturismo Le Monache
2,4 Km
Mostra tutto

Caratteristiche

Rif.:
60991054
Piano:
Terra di 2
Totale piani:
2
Posti auto:
10
Condizionamento:
Autonomo
Ascensore:
No
Mostra tutto
Prezzo Prezzo
€ 750 / mese
Spese annue Spese annue
€ 0

Classe Energetica

C
C
C
C
C
C
C
C
C
EP globale non rinnovabile:
297.79 kW h/m² anno
EP globale rinnovabile:
216.60 kW h/m² anno
EP invernale del fabbricato:
EP estiva del fabbricato:
Anno di costruzione:
2000
Riscaldamento:
Autonomo
Tipo impianto:
Ad aria
Tipo alimentazione:
Aria

Prezzo ridotto di €1 (7%%)

Ti interessa visionare l'immobile?

Fissa un appuntamento  Fissa un appuntamento

Richiedi informazioni

Clicca su Leggi per aprire l'informativa
* Questi campi sono obbligatori
Affiliato
Industriale Treviglio Srl
Via Cesare Battisti, 47 24047 Treviglio (BG)

Il nostro staff


  • Alice Blini
    Coordinatrice

  • Elena Chiti
    Coordinatrice

  • Debora Defendi
    Coordinatrice

  • Zaccaria Hakim
    Collaboratore

  • Ermanno Leoni
    Affiliato

  • Riccardo Maestri
    Collaboratore
Via Cesare Battisti, 47 24047 Treviglio (BG)
Zona: Treviglio-Pontirolo Nuovo-Rivolta D'Adda-Pandino-Trescore Cremasco-Spino D'Adda
Mostra su mappa
Affiliato
Industriale Treviglio Srl
Via Cesare Battisti, 47 24047 Treviglio (BG)

2025 Tecnocasa Franchising S.p.A. - P. IVA 08365160152 - Via Monte Bianco 60/A 20089 Rozzano (MI). Ogni agenzia ha un proprio titolare ed è autonoma. Privacy policy | Policy utilizzo | Cookie policy