Negozio in affitto

Treviglio, Via roma
€ 2.250 / mese
2 locali 2 locali
140 Mq 140 Mq
2 bagni 2 bagni

Negozio in affitto

Treviglio, Via roma

Descrizione annuncio

COSA SAPERE DELL'IMMOBILE PER INFORMAZIONI ED APPUNTAMENTI CHIAMA 0363 700 628

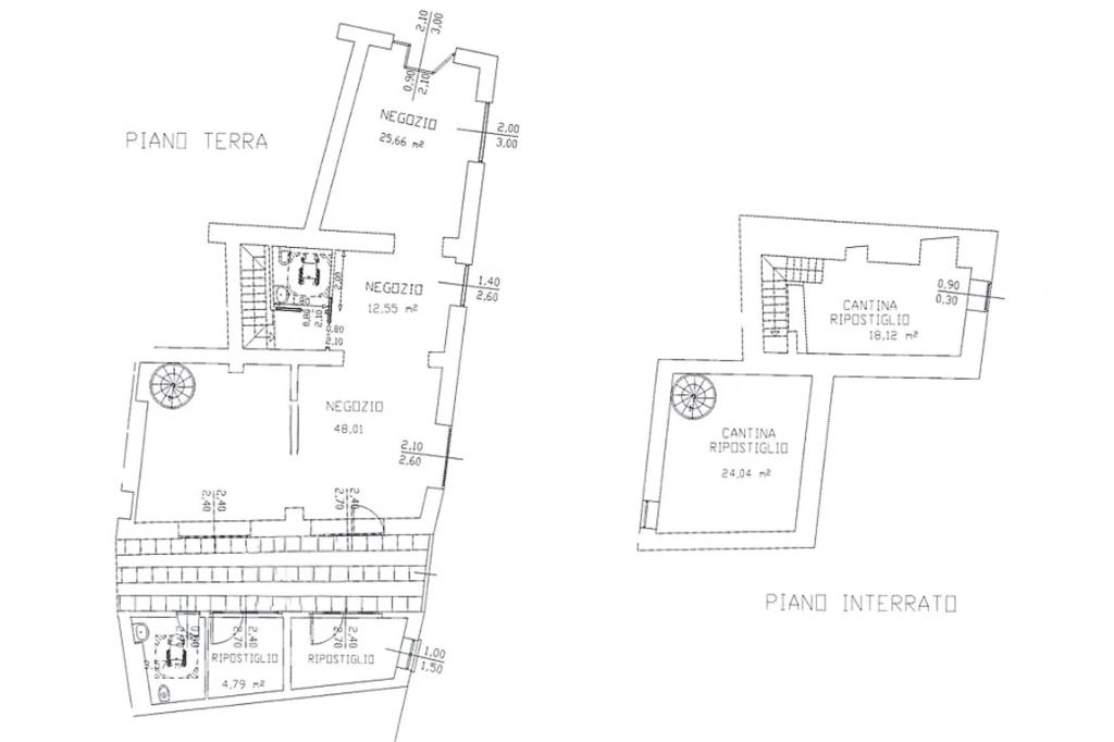
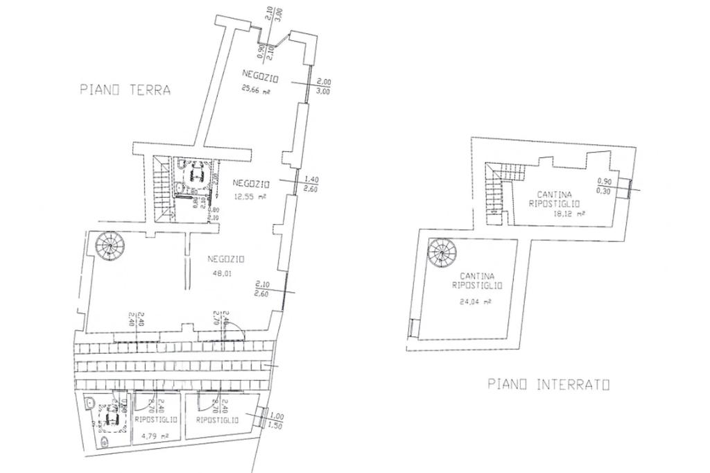
Proponiamo in locazione un negozio con superficie di circa 140 metri quadrati, di cui 40 metri quadri ad uso esclusivo di magazzino.

DESCRIZIONE E PARTICOLARITA'

Il negozio misura 100 metri quadrati e si trova al piano terra di una palazzina condominiale che si sviluppa su due livelli. La soluzione è attualmente un open space con doppio magazzino ed è dotata di due servizi igienici. L'ambiente è particolarmente luminoso grazie alla presenza di due grandi vetrine. L'immobile possiede impianto di riscaldamento, elettrico e d'illuminazione ed è cablato. Inoltre possiede un magazzino di 40 metri quadrati al piano seminterrato raggiungibile tramite scala interna.

UBICAZIONE E CONTESTO

Il complesso è ubicato nel Comune di Treviglio, a pochi minuti di distanza dalla Strada Statale SS472, la quale collega il paese ai Comuni limitrofi, e a meno di 4 km dal casello autostradale A35 di Caravaggio. Il fabbricato gode di alcuni parcheggi pubblici a pagamento situati nelle vicinanze della soluzione.

Mostra tutto

Nelle vicinanze

Trasporto pubblico Trasporto pubblico
stazione di Treviglio
stazione di Treviglio
800 m
Treviglio Ovest
Treviglio Ovest
1,0 Km
Treviglio - Viale del partigiano
Treviglio - Viale del partigiano
220 m
Trasporto pubblico
220 m
Ricariche auto elettriche Ricariche auto elettriche
Treviglio Crivelli | EnelX
360 m
Treviglio Parcheggio della piscina | EnelX
670 m
ENERCOOP Treviglio
820 m
U2 Supermercato Treviglio | EnelX
880 m
Fiera di Treviglio | EnelX
900 m
Scuole Scuole
Scuola materna "Carlo Carcano"
260 m
Istituto comprensivo "E. De Amicis"
310 m
Collegio degli Angeli
410 m
Centro Salesiano Don Bosco
470 m
Scuole
640 m
Farmacia Farmacia
Farmacia Dottor Guarnieri
50 m
Farmacia Morello
90 m
Farmacia Dottori Piccinelli
120 m
Farmacia Comunale 3
650 m
Farmacia Comunale 1
830 m
Ospedali Ospedali
Azienda Ospedaliera Treviglio Caravaggio
1,9 Km
Supermercati Supermercati
Leader Price
500 m
Aldi
800 m
IperCoop
860 m
U2
870 m
Italmark
890 m
Negozi Negozi
Tezenis
50 m
Negozi
180 m
Maggi
270 m
Celiachia Store
490 m
Capsule caffè
1,6 Km
Bar Bar
Caffè Milano
60 m
Bar
90 m
Patty & Selma
90 m
Big Mamy
100 m
Caffè Sangalli
180 m
Ristoranti Ristoranti
Agave
80 m
Matè
130 m
Via Verga 16
230 m
Royal Taj
260 m
Pizzeria Bonomius
260 m
Mostra tutto

Caratteristiche

Rif.:
61192454
Piano:
Rialzato di 2
Totale piani:
2
Condizionamento:
Autonomo
Ascensore:
No
Riscaldamento:
Autonomo
Mostra tutto
Prezzo Prezzo
€ 2.250 / mese
Spese annue Spese annue
€ 1.500

Classe Energetica

Questo immobile è esente da classe energetica
Anno di costruzione:
1990
Riscaldamento:
Autonomo
Tipo impianto:
A radiatori
Tipo alimentazione:
Metano

Ti interessa visionare l'immobile?

Fissa un appuntamento  Fissa un appuntamento

Richiedi informazioni

Clicca su Leggi per aprire l'informativa
* Questi campi sono obbligatori
Affiliato
Industriale Treviglio Srl
Via Cesare Battisti, 47 24047 Treviglio (BG)

Il nostro staff


  • Leonardo Baffi
    Collaboratore

  • Alice Blini
    Coordinatrice

  • Pietro Calabrese
    Collaboratore

  • Debora Defendi
    Responsabile

  • Ermanno Leoni
    Affiliato
Via Cesare Battisti, 47 24047 Treviglio (BG)
Zona: Treviglio-Pontirolo Nuovo-Rivolta D'Adda-Pandino-Trescore Cremasco-Spino D'Adda
Mostra su mappa
Affiliato
Industriale Treviglio Srl
Via Cesare Battisti, 47 24047 Treviglio (BG)

2026 Tecnocasa Franchising S.p.A. - P. IVA 08365160152 - Via Monte Bianco 60/A 20089 Rozzano (MI). Ogni agenzia ha un proprio titolare ed è autonoma. Privacy policy | Policy utilizzo | Cookie policy