Ufficio in vendita

Treviglio, Via A. Crippa
3 locali 3 locali
80 Mq 80 Mq
1 bagno 1 bagno

Ufficio in vendita

Treviglio, Via A. Crippa

Descrizione annuncio

COSA SAPERE DELL'IMMOBILE

PER INFORMAZIONI ED APPUNTAMENTI CHIAMA 0363 700 628

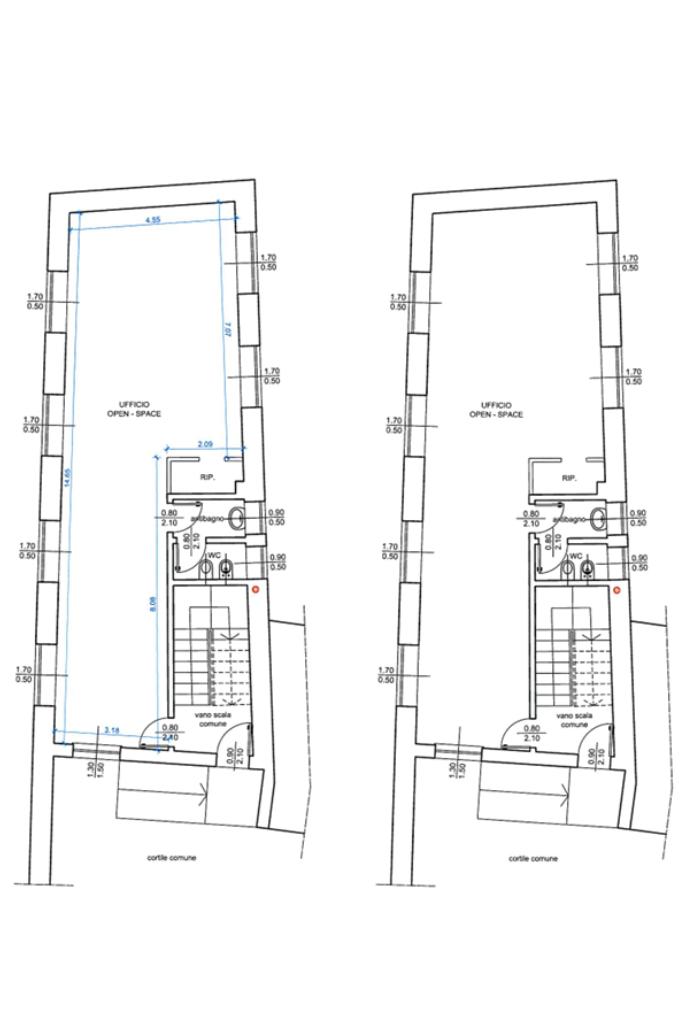
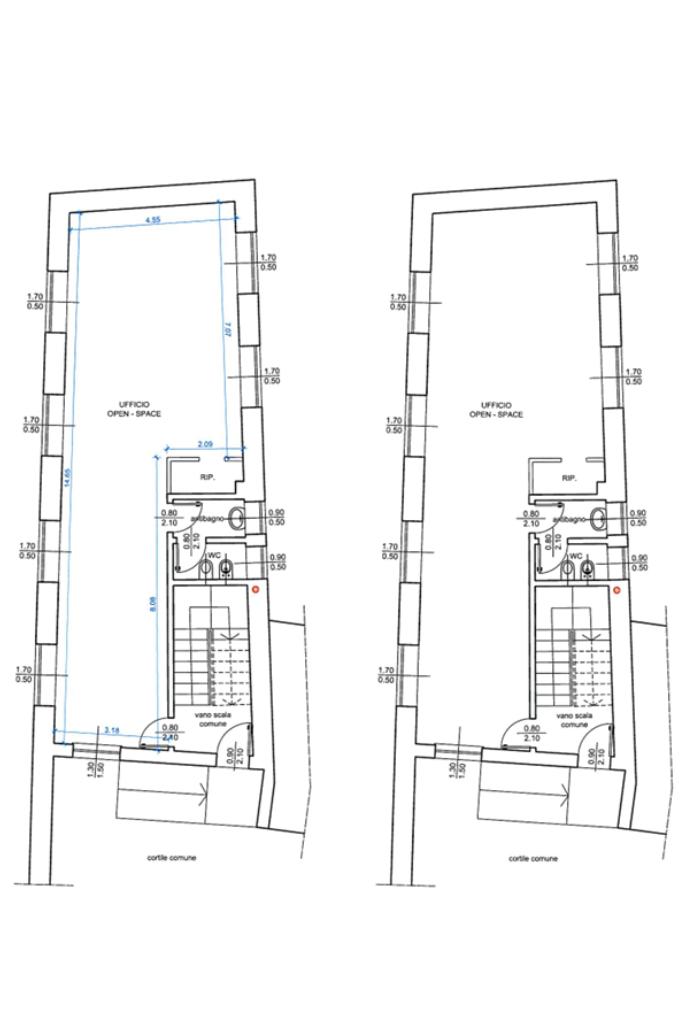
Proponiamo in vendita un ufficio con superficie di circa 80 metri quadrati, situato al piano terra di una struttura direzionale/commerciale.

DESCRIZIONE E PARTICOLARITA'

La soluzione misura complessivamente circa 80 metri quadrati e si trova al piano terra di una palazzina commerciale/direzionale che si sviluppa su quattro livelli. Il complesso è attualmente diviso in tre locali ed è dotato di un servizio igienico privato. L'ufficio è servito da impianto di riscaldamento, impianto elettrico e quello di illuminazione. L’ambiente risulta ben illuminato grazie alla presenza di ampie finestre. Il locale è cablato, presenta la connessione ad Internet e la predisposizione dell’impianto di condizionamento.

UBICAZIONE E CONTESTO

Il complesso è ubicato nel Comune di Treviglio, a pochi minuti dal centro della Città. Nelle vicinanze e di fronte al palazzo si trovano molti parcheggi pubblici.

Mostra tutto

Nelle vicinanze

Trasporto pubblico Trasporto pubblico
stazione di Treviglio
stazione di Treviglio
840 m
Treviglio Ovest
Treviglio Ovest
1,2 Km
Trasporto pubblico
50 m
Treviglio - Viale del partigiano
Treviglio - Viale del partigiano
370 m
Ricariche auto elettriche Ricariche auto elettriche
Treviglio Crivelli | EnelX
200 m
Treviglio Parcheggio della piscina | EnelX
500 m
ENERCOOP Treviglio
660 m
Fiera di Treviglio | EnelX
930 m
LIDL Treviglio
1,0 Km
Scuole Scuole
Scuola materna "Carlo Carcano"
170 m
Collegio degli Angeli
410 m
Istituto comprensivo "E. De Amicis"
460 m
Scuole
550 m
Centro Salesiano Don Bosco
580 m
Farmacia Farmacia
Farmacia Morello
190 m
Farmacia Dottor Guarnieri
210 m
Farmacia Dottori Piccinelli
210 m
Farmacia Comunale 3
500 m
Farmacia Comunale 1
990 m
Ospedali Ospedali
Azienda Ospedaliera Treviglio Caravaggio
1,8 Km
Supermercati Supermercati
Leader Price
340 m
IperCoop
690 m
Aldi
900 m
Italmark
900 m
Lidl
1,0 Km
Negozi Negozi
Negozi
130 m
Tezenis
160 m
Maggi
340 m
Celiachia Store
660 m
Capsule caffè
1,6 Km
Bar Bar
Caffè Sangalli
110 m
Nuovo Bar Mercato
130 m
Bar
200 m
Caffè Milano
210 m
Patty & Selma
230 m
Ristoranti Ristoranti
Agave
250 m
Matè
270 m
Dal Carletto
300 m
Via Verga 16
310 m
Royal Taj
310 m
Mostra tutto

Caratteristiche

Rif.:
60990885
Piano:
Terra di 4
Totale piani:
4
Posti auto:
30
Condizionamento:
Predisposizione impianto
Ascensore:
No
Mostra tutto
Prezzo Prezzo
€ 120.000
Rata mutuo Rata mutuo
€ 566 / mese
Spese annue Spese annue
€ 600
Anche in affitto a
Proponi il tuo prezzoProponi il tuo prezzo

Classe Energetica

Questo immobile è esente da classe energetica
Anno di costruzione:
1980
Riscaldamento:
Autonomo
Tipo impianto:
A radiatori
Tipo alimentazione:
Metano

Ti interessa visionare l'immobile?

Fissa un appuntamento  Fissa un appuntamento

Richiedi informazioni

Clicca su Leggi per aprire l'informativa
* Questi campi sono obbligatori

Calcola il tuo mutuo

Semplice e senza impegno
Anticipo

( % )
Mutuo

( % )

pochi semplici passi

inserisci i tuoi dati
Questionario completato
Grazie per aver richiesto un appuntamento senza impegno con un nostro Consulente del Credito e Assicurativo.

Hai inserito correttamente tutti i dati necessari e a breve riceverai una e-mail con un link da convalidare per inviare i tuoi dati.
Affiliato
Industriale Treviglio Srl
Via Cesare Battisti, 47 24047 Treviglio (BG)

Il nostro staff


  • Alice Blini
    Coordinatrice

  • Elena Chiti
    Coordinatrice

  • Debora Defendi
    Coordinatrice

  • Zaccaria Hakim
    Collaboratore

  • Ermanno Leoni
    Affiliato

  • Riccardo Maestri
    Collaboratore
Via Cesare Battisti, 47 24047 Treviglio (BG)
Zona: Treviglio-Pontirolo Nuovo-Rivolta D'Adda-Pandino-Trescore Cremasco-Spino D'Adda
Mostra su mappa
Affiliato
Industriale Treviglio Srl
Via Cesare Battisti, 47 24047 Treviglio (BG)

2025 Tecnocasa Franchising S.p.A. - P. IVA 08365160152 - Via Monte Bianco 60/A 20089 Rozzano (MI). Ogni agenzia ha un proprio titolare ed è autonoma. Privacy policy | Policy utilizzo | Cookie policy